网站首页
关于我们
产品中心
工程业绩
新闻中心
技术文章
服务体系
联系我们
产品中心
格栅、输送压榨系列
栅渣输送与压榨系列
沉砂池及砂水分离系列
沉淀池刮吸泥机系列
脱水机系列、加药混合系列
深度处理系列
闸门、启闭机系列
给水水质净化设备
搅拌机系列
曝气器系列
填料等材料
环保配件
当前位置:
首页 > 产品中心 >
RSG 渠箱螺旋式机械格栅
用途与简介
RSG 渠箱螺旋式机械格栅是城市小型污水处理厂和工业废水处理过程中将水中漂浮物质、沉降物质及悬浮物质分离取出的理想设备,广泛用于城市小型生活污水厂、工业废水处理工程的除污、捞渣及压榨脱水。用于城市小型污水处理厂的除污、捞渣及压榨脱水;工业废水处理工程的除污、捞渣及压榨脱水。
结构和工作原理
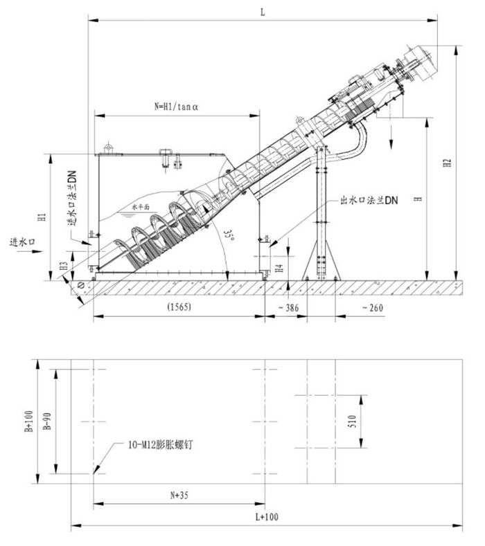
RSG 渠箱螺旋式机械格栅主要由弧形格栅、螺旋提升压榨机和渠箱组成。渠箱的作用是联接进出水口和支承整台格栅机,弧形格栅安装在渠箱内,水流通过渠箱时栅渣被截留在渠箱内,渠箱内的螺旋提升压榨机定期将弧形格栅截留的栅渣提升并压榨,最后从排渣口排出。
型号说明
主要特点
1、渠箱与污水输送管路直联,无需建造钢筋混凝土沟渠;
2、变径螺旋结构可使栅渣在提升过程中压榨脱水,减少了垃圾的后污染;
3、渠箱内的水流与独特的捞渣结构相互作用下具有自清能力,防止格栅堵塞;
4、带水位差控制和定时控制,保证格栅机全自动运行,无需专人看管。
安装示意图
型号及主要技术参数
·下一个:
WB网板阶梯式格栅除污机
·上一个:
NJL内进流式孔板格栅除污机
唯实创新、追求卓越,共赢未来
关于我们
公司简介
公司简介
工程业绩
服务体系
企业文化
资质荣誉
产品中心
格栅、输送压榨系列
栅渣输送与压榨系列
沉砂池及砂水分离系列
沉淀池刮吸泥机系列
脱水机系列、加药混合系列
深度处理系列
新闻中心
技术文章
新闻中心
联系我们
联系方式
版权所有(C)2025 江苏维新环保集团有限公司 All Rights Reserved. 备案号:
苏ICP备17012674号-7
联系电话
18651011688
传真:0510-87832633
地址:江苏省宜兴市高塍镇塍文路20号
×
18651011688 谢经理