网站首页
关于我们
产品中心
工程业绩
新闻中心
技术文章
服务体系
联系我们
产品中心
格栅、输送压榨系列
栅渣输送与压榨系列
沉砂池及砂水分离系列
沉淀池刮吸泥机系列
脱水机系列、加药混合系列
深度处理系列
闸门、启闭机系列
给水水质净化设备
搅拌机系列
曝气器系列
填料等材料
环保配件
当前位置:
首页 > 产品中心 >
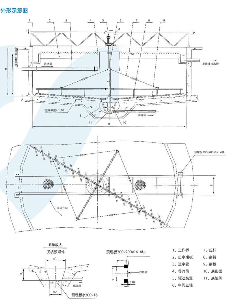
ZXG中心传动刮泥机
用途与简介
ZXG型中心传动刮泥机,整台刮泥机的载荷都作用在工作桥架的中心,由中心驱动机构带动刮集泥装置旋转,定向刮板将沉淀池底的污泥刮集到中心集泥槽中,靠静水压力将其从污泥槽中排出,该机用于池径较小的幅流式沉淀池。
主要结构和工作原理
中心传动刮泥机主要由工作桥、传动装置、传动轴、刮臂、刮泥板等组成。该机设有横跨池子的固定平台,工作时其整机载荷都作用在工作桥中心;污水经池中心稳流筒均流到四周。随着过流面积增大而流速降低,污水中的沉淀物沉淀于池底,刮泥机将沉淀的污泥刮集到中心集泥坑中,利用水压将其从污泥管中排出。
主要特点
1、工作桥采用全桥式,其材质可采用碳钢、不锈钢或混凝土结构;
2、驱动装置采用立式三级摆线针轮减速机或由斜齿轮减速机与蜗轮减速机组合,保证输出扭矩及转速;
3、刮板采用直线型刮板;
4、刮泥机立轴下端设有水下轴承和刮刀,避免立轴转动时的偏摆及集泥槽内污泥积实;5、设置机械和电气双重过载保护,运转安全可靠;
6、设备操作简单,可直接就地/远程控制设备的运行。直接对设备进行控制。
型号说明
型号及主要技术参数
外形示意图
·下一个:
ZBX周边传动吸泥机
·上一个:
ZCG垂架式中心传动刮泥机
唯实创新、追求卓越,共赢未来
关于我们
公司简介
公司简介
工程业绩
服务体系
企业文化
资质荣誉
产品中心
格栅、输送压榨系列
栅渣输送与压榨系列
沉砂池及砂水分离系列
沉淀池刮吸泥机系列
脱水机系列、加药混合系列
深度处理系列
新闻中心
技术文章
新闻中心
联系我们
联系方式
版权所有(C)2025 江苏维新环保集团有限公司 All Rights Reserved. 备案号:
苏ICP备17012674号-7
联系电话
18651011688
传真:0510-87832633
地址:江苏省宜兴市高塍镇塍文路20号
×
18651011688 谢经理