网站首页
关于我们
产品中心
工程业绩
新闻中心
技术文章
服务体系
联系我们
产品中心
格栅、输送压榨系列
栅渣输送与压榨系列
沉砂池及砂水分离系列
沉淀池刮吸泥机系列
脱水机系列、加药混合系列
深度处理系列
闸门、启闭机系列
给水水质净化设备
搅拌机系列
曝气器系列
填料等材料
环保配件
当前位置:
首页 > 产品中心 >
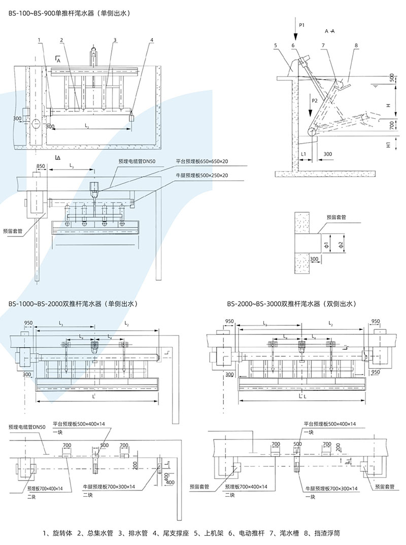
BS电动推杆旋转式滗水器
用途与简介
BS型电动推杆旋转式滗水器,广泛适用于城市污水及造纸、啤洒、制革、制药等各种工业废水处理,用于排水阶段将已经处理的上清液自表面滗出,是SBR工艺的关键设备。
主要结构和工作原理
该设备采用旋转式、电动推杆式,安装于反应池或沉淀池内,工作时由驱动装置驱动推杆,使滗水器以一定速度渐渐下降至水面(在规定的行程范围内),使堰口浸入水面下,上清液从堰口流入,经集水支管汇集至总管后排出,停止时同样由推杆将滗水器提起,使堰口抬离水面以上,从而完成一个滗水的过程。
主要特点
1、设备结构紧凑,运行平稳,整体结构安装方便、运行成本低;
2、对水质、水量的变化有较强的适应性,且滗水深度可达3.0m;
3、处理量Q< 1000m3/h,采用单推杆,Q≥1000m3/h,则采用双推杆;
4、在滗水堰口出外设有浮渣挡板,以确保在设备运行时堰口上的液面不起波动,保证出水水质达到较佳;
5、设备变频调速和PL C自动及远程控制,运行管理方便。
型号说明
型号及主要技术参数
外形示意图
·下一个:
JYG集油管(撇渣管)
·上一个:
DNY一体化浓缩脱水装置
唯实创新、追求卓越,共赢未来
关于我们
公司简介
公司简介
工程业绩
服务体系
企业文化
资质荣誉
产品中心
格栅、输送压榨系列
栅渣输送与压榨系列
沉砂池及砂水分离系列
沉淀池刮吸泥机系列
脱水机系列、加药混合系列
深度处理系列
新闻中心
技术文章
新闻中心
联系我们
联系方式
版权所有(C)2025 江苏维新环保集团有限公司 All Rights Reserved. 备案号:
苏ICP备17012674号-7
联系电话
18651011688
传真:0510-87832633
地址:江苏省宜兴市高塍镇塍文路20号
×
18651011688 谢经理