网站首页
关于我们
产品中心
工程业绩
新闻中心
技术文章
服务体系
联系我们
产品中心
格栅、输送压榨系列
栅渣输送与压榨系列
沉砂池及砂水分离系列
沉淀池刮吸泥机系列
脱水机系列、加药混合系列
深度处理系列
闸门、启闭机系列
给水水质净化设备
搅拌机系列
曝气器系列
填料等材料
环保配件
当前位置:
首页 > 产品中心 >
DNY一体化浓缩脱水装置
用途与简介
DNY一体化浓缩脱水装置适用于城市生活污水厂、自来水厂以及造纸、石油化工、煤炭、轻纺、食品、制药、酿造等行业废水处理中的污泥脱水工序;也适用于一些工业生产中的固液分离工序,是环境治理和物料回收的理想设备,与其它脱水机械相比,本机具有处理能力大、能耗低、脱水效果好、维修使用方便、运行费用低、安全可靠、能够连续自动化生产等优点。
DNY一体化浓缩脱水装置对市政生化污泥有超过20m3/h以上的水力负荷能力,高效的浓缩及脱水效果,超长的预压区,高位卸料机构,体现了该机型强大的适应性,应用极为广泛。
通过不同的浓缩机组合,可以满足压滤段固体负荷的需要。
该系列机型压榨轮有不同数量的设计,以满足不同客户对含水率的要求。适合于污泥量较大的处理场合。
该系列机型具有多压榨轮高压机型,满足更低的含水率的要求。
工作原理
DNY一体化浓缩脱水装置整个工作过程可分为四个基本阶段:
污泥絮凝:污泥在脱水前必须先经过絮凝过程,絮凝是指用一种絮凝剂对悬浮物进行预处理,絮凝剂与污泥经搅拌混合,悬浮系中的固相粒子发生粘接产生凝聚现象,使固相与液相分离。同时加入少量助凝剂,提高絮凝效果。
重力脱水:为了更有效地在压榨前降低污泥的流动性,必须脱出更多的游离水,滤带运行段有一个上倾角,污泥、游离水与滤带的摩擦系数不同,污泥随滤带上行,脱出游离水,梳泥装置将污泥疏散,均匀地分布在滤带表面,进一步增强脱水效果。
压榨脱水:经过重力脱水后,随着滤带的移动进入上下滤带之间的楔型加压段,进行预压脱水,然后进入“S形压榨区,由于污泥随着滤带在多个银间的变相弯曲产生的剪切力,从而榨出内部的游离水。
滤带清洗:由喷淋器、清洗水接液盒和清洗罩等组成。当带式压滤机滤带行走时,连续经过清洗装置,受喷淋器喷出的压力水冲击,残留在滤带上的物料在压力水作用下与滤带脱离,使滤带再生,为下一个脱水过程做准备。
主要特点
1、—体化设备,自动控制,连续运行
2、能耗低,使用寿命长
3、浓缩脱水效率高,泥饼含固率高4、易于管理,维护方便
5、低噪音,使用化学药剂少
6、经济可靠,应用范围广
型号说明
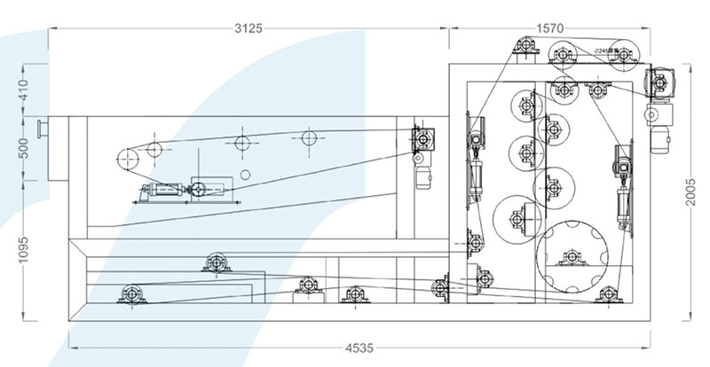
外形示意图
型号及主要技术参数
·下一个:
BS电动推杆旋转式滗水器
·上一个:
DS污泥深度脱水机
唯实创新、追求卓越,共赢未来
关于我们
公司简介
公司简介
工程业绩
服务体系
企业文化
资质荣誉
产品中心
格栅、输送压榨系列
栅渣输送与压榨系列
沉砂池及砂水分离系列
沉淀池刮吸泥机系列
脱水机系列、加药混合系列
深度处理系列
新闻中心
技术文章
新闻中心
联系我们
联系方式
版权所有(C)2025 江苏维新环保集团有限公司 All Rights Reserved. 备案号:
苏ICP备17012674号-7
联系电话
18651011688
传真:0510-87832633
地址:江苏省宜兴市高塍镇塍文路20号
×
18651011688 谢经理